Lakás eladó

Budapest XII. ker., Sólyom utca - Orbánhegy
115.000.000 Ft
€ 298.592
3 szoba 3 szoba
64 nm 64 nm

Lakás eladó

Budapest XII. ker., Sólyom utca - Orbánhegy

Leírás

Felújított otthon egyedülálló panorámával a városra!
Az ingatlan a Hegyvidék szívében, a kedvelt Orbánhegyen, a XII. kerület egyik legszebb részén található. Csendes, átmenő forgalomtól mentes utcában, mégis kiváló közlekedéssel. Autóval és tömegközlekedéssel a belváros könnyen és gyorsan elérhető. Parkolás az utcán ingyenes.
Az épület a Sólyom utca és a Kakukk út között helyezkedik el, nagyon jó közösségből álló 12 lakásos társasház. A tulajdonosi szemléletű gazdálkodásnak köszönhetően az épület igényes, tiszta, karbantartott. Az elmúlt években a tervezett felújításnak köszönhetően az épület zárófödéme új hő-és vízszigetelést kapott, új hőközpont került kialakítása kondenzációs gázkazánokkal, melegvíz tároló rendszerrel, megújult az elektromos elosztó rendszer, kaputelefon, gépészeti alapvezetékek, közös területek nyílászárói továbbá a homlokzati hőszigetelés előkészítése zajlik. Szélessávú internet szolgáltatás optikai kábelen történik.
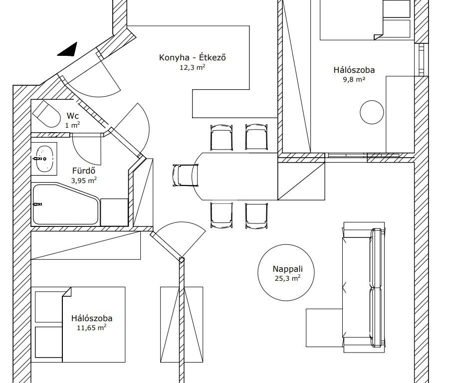
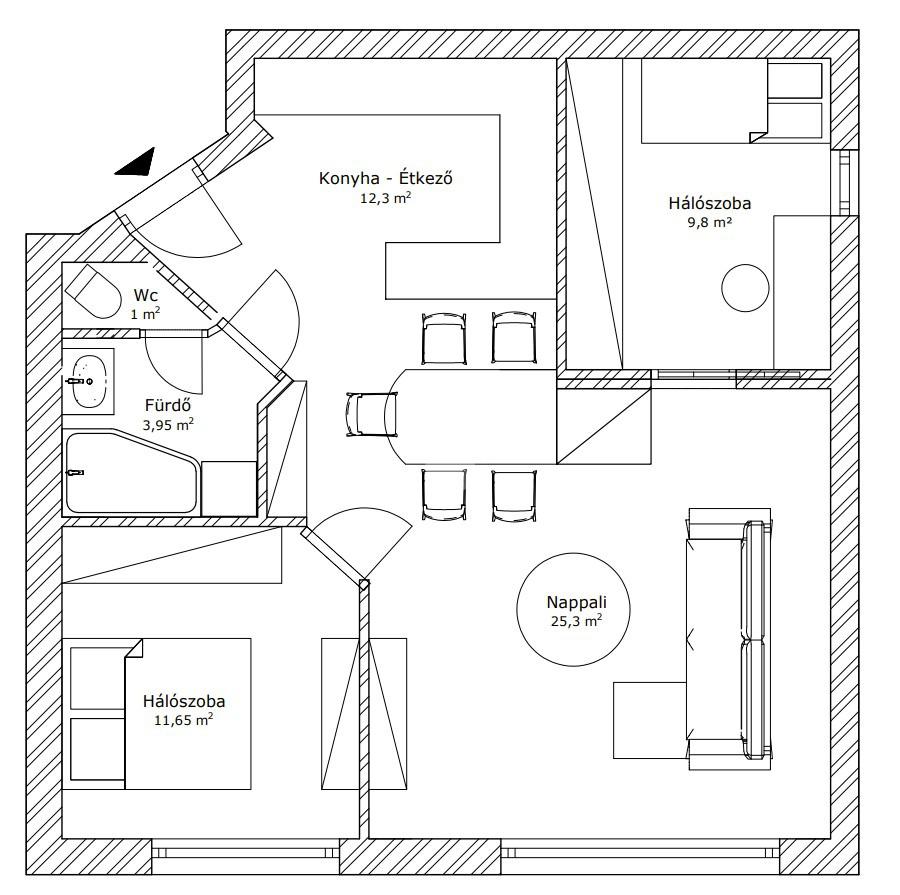
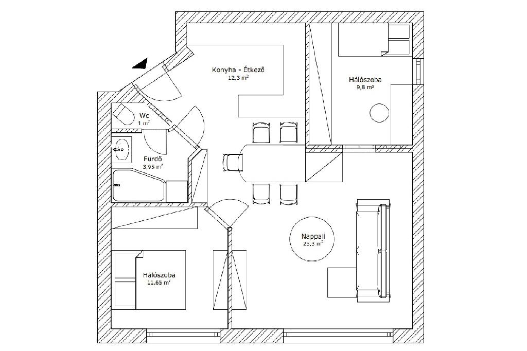
A lakás 64m2 alapterületű teljeskörű felújításon esett át, mind esztétikailag mind műszakilag megújult (fűtés, víz, elektromos hálózat). Az egyedi megjelenés igényes anyagokkal párosul. A téli időszakban a radiátoros fűtés egyedileg szabályozható, távolról is elérhető okos termosztátokkal vezérelt ami az épület új központi kazánházához csatlakozik. A hűtésről klímák gondoskodnak. A nyílászárók motoros redőnyökkel és rovarhálóval felszereltek. Az egyedi konyhabútor Bosch beépített háztartási gépekkel felszerelt. A lakás az épület 3. emeletén található, egyedülálló kilátással a városra. Tároló helyiség a földszinten áll rendelkezésre, kerékpár, babakocsi tároló a bejárat mellett.
A ház körüli kikapcsolódásról egy hangulatos kis kert és egy különleges panorámával rendelkező tetőterasz gondoskodik. A közös költség tartalmazza a felújítási alapot, fűtés-, víz-csatorna-, hulladékszállítás-, közös területek takarításának díját.
Közös költség 29.000,- Ft
Rezsiköltség 19.000,- Ft

Összes mutatása

Tulajdonságok

Ref.:
59327
Állapot:
Felújított
Emelet:
3
Lift:
Nincs
Építés éve:
1975
Emeletek száma:
3
Összes mutatása

Energetikai tanúsítvány

Ennél az ingatlannál az energetikai tanúsítvány folyamatban van
Építés éve:
1975

Vegye fel velünk a kapcsolatot

* Ez a mező kötelező
Franchisee
Dodici Quartiere Kft.
1126 Budapest, Márvány utca, 44.
1126 Budapest, Márvány utca, 44. XII. kerület Németvölgy - XI. kerület Sashegy
Hétfő-Péntek: 09:00-19:00,Szombat: 09:00-13:00

Munkatársaink


  • Gábor Tóth
    Irodatulajdonos

  • Csatári Mihály
    Irodavezető
Franchisee
Dodici Quartiere Kft.
1126 Budapest, Márvány utca, 44.
Tecnocasa Group Logo

Minden ügynökségnek saját tulajdonosa van és önállóan működik.

árfolyam 15/12/2025
EUR 385.14 HUF

cégünk

Elérhetőségeink

2025 Gruppo T.F.M. Szolgáltató Zrt. - P. IVA 27421275-2-42 - 1068 Budapest, Király utca 102.. Minden ügynökségnek saját tulajdonosa van és önállóan működik.

Adatvédelmi irányelvek | Cookies tájékoztató