Lakás eladó

Budapest XII. ker., Sólyom utca - Orbánhegy
96.000.000 Ft
€ 245.405
2 szoba 2 szoba
64 nm 64 nm

Lakás eladó

Budapest XII. ker., Sólyom utca - Orbánhegy

Leírás

Kizárólag Irodánk kínálatában!

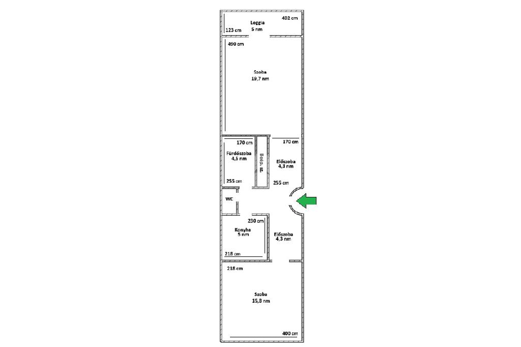
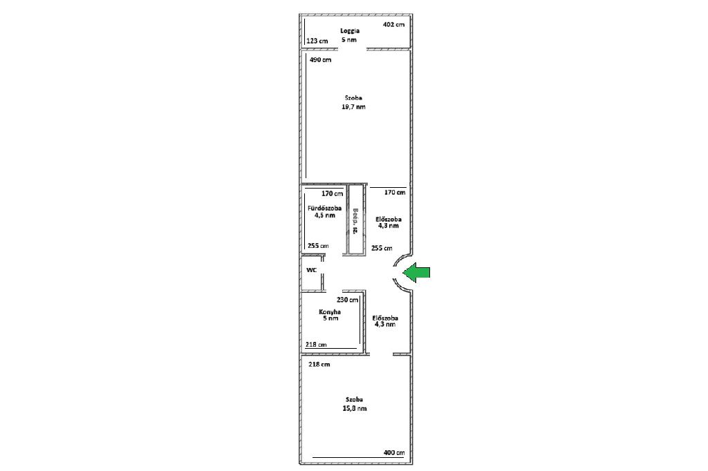
Eladásra kínálunk Orbánhegyen, a Sólyom utcában egy 64 nm-es, jó állapotú, erkélyes 2 szobás lakást egy 4 lakásos társasházban.
A lakásban a nyílászárók burkolatok, vezetékek korábban felújításon estek át.
Déli tájolásának köszönhetően rendkívül világos.
A lakás házközponti fűtésű, egyedi órákkal rendelkezik.
Tartozik a lakáshoz saját 3 nm-es tároló.

A környék infrastruktúrája kiváló: a közelben iskolák, üzletek, parkok, rendelők találhatók, a tömegközlekedés pedig néhány perc sétával elérhető.

Kérdés esetén keressen minket bizalommal!
Irodánk ingyenes hiteltanácsadással áll ügyfeleink rendelkezésére.
Vevőink részére a közvetítés díjmentes.
A hirdetésben szereplő adatok tájékoztató jellegűek.

Összes mutatása

Tulajdonságok

Ref.:
58901
Állapot:
Emelet:
1
Lift:
Nincs
Építőanyag:
Tégla
Építés éve:
1950
Összes mutatása

Energetikai tanúsítvány

Ennél az ingatlannál az energetikai tanúsítvány folyamatban van
Építés éve:
1950

Vegye fel velünk a kapcsolatot

* Ez a mező kötelező
Franchisee
Dodici Quartiere Kft.
1126 Budapest, Márvány utca, 44.
1126 Budapest, Márvány utca, 44. XII. kerület Németvölgy - XI. kerület Sashegy
Hétfő-Péntek: 09:00-19:00,Szombat: 09:00-13:00

Munkatársaink


  • Gábor Tóth
    Irodatulajdonos

  • Csatári Mihály
    Irodavezető
Franchisee
Dodici Quartiere Kft.
1126 Budapest, Márvány utca, 44.
Tecnocasa Group Logo

Minden ügynökségnek saját tulajdonosa van és önállóan működik.

árfolyam 23/12/2025
EUR 391.19 HUF

cégünk

Elérhetőségeink

2025 Gruppo T.F.M. Szolgáltató Zrt. - P. IVA 27421275-2-42 - 1068 Budapest, Király utca 102.. Minden ügynökségnek saját tulajdonosa van és önállóan működik.

Adatvédelmi irányelvek | Cookies tájékoztató