Lakás eladó

Budapest XII. ker., Böszörményi út - Németvölgy
69.900.000 Ft
€ 179.387
2 szoba 2 szoba
42 nm 42 nm

Lakás eladó

Budapest XII. ker., Böszörményi út - Németvölgy

Leírás

Kizárólag Irodánk kínálatában!

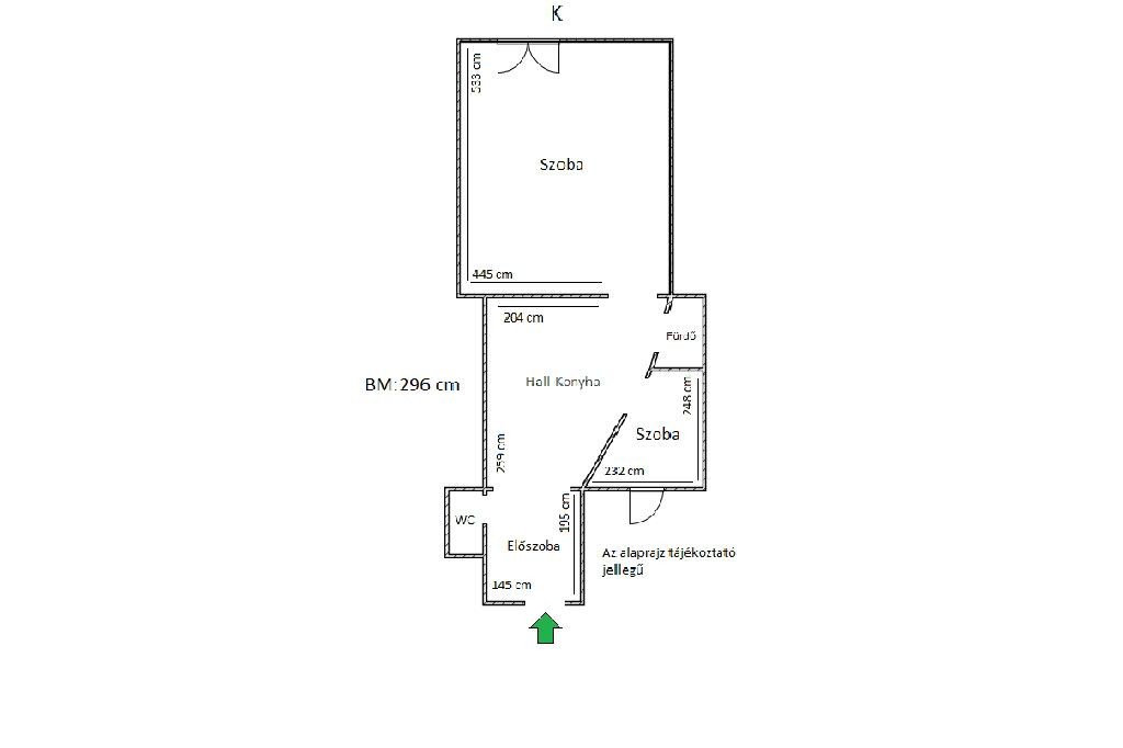
Eladó Németvölgyben, a Királyhágó térben, egy 42 nm-es, 2 szoba + hallos, jó állapotú lakás, egy frissen felújított társasház magasföldszintjén.
A lakás 6 évvel ezelőtt jelentős felújításokon esett át, melynek során új cirkókazánt és nyílászárókat kapott, kicserélték a vezetékeket, valamint a parkettát is felújították.

A lakáshoz tartozik tároló is.
Közös költsége 30.000 Ft, mely az általános költségeken felül magába foglalja a vízfogyasztást is.

Elhelyezkedése kiváló, közelben oktatási központok, boltok, üzletek, rendelők, parkok megtalálhatóak. Tömegközlekedés szempontjából 1-2 perc sétatávolságra villamosok, busz- és metrómegállók elérhetőek.

Kérdés esetén keressenek minket bizalommal!
Irodánk ingyenes hiteltanácsadással áll ügyfeleink rendelkezésére.
Vevőink részére a közvetítés díjmentes. A hirdetésben szereplő adatok tájékoztató jellegűek.

Összes mutatása

Tulajdonságok

Ref.:
58388
Állapot:
Emelet:
Magasföldszint
Lift:
Nincs
Építőanyag:
Tégla
Építés éve:
1920
Összes mutatása

Energetikai tanúsítvány

Ennél az ingatlannál az energetikai tanúsítvány folyamatban van
Építés éve:
1920

Vegye fel velünk a kapcsolatot

* Ez a mező kötelező
Franchisee
Dodici Quartiere Kft.
1126 Budapest, Márvány utca, 44.
1126 Budapest, Márvány utca, 44. XII. kerület Németvölgy - XI. kerület Sashegy
Hétfő-Péntek: 09:00-19:00,Szombat: 09:00-13:00

Munkatársaink


  • Gábor Tóth
    Irodatulajdonos

  • Csatári Mihály
    Irodavezető
Franchisee
Dodici Quartiere Kft.
1126 Budapest, Márvány utca, 44.
Tecnocasa Group Logo

Minden ügynökségnek saját tulajdonosa van és önállóan működik.

árfolyam 27/10/2025
EUR 389.66 HUF

cégünk

Elérhetőségeink

2025 Gruppo T.F.M. Szolgáltató Zrt. - P. IVA 27421275-2-42 - 1068 Budapest, Király utca 102.. Minden ügynökségnek saját tulajdonosa van és önállóan működik.

Adatvédelmi irányelvek | Cookies tájékoztató